Quadrilocale in vendita

Bassano Romano, Via Roma
€ 83.000
4 locali 4 locali
144 Mq 144 Mq
2 bagni 2 bagni

Quadrilocale in vendita

Bassano Romano, Via Roma

Descrizione annuncio

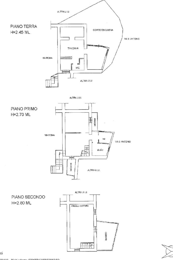
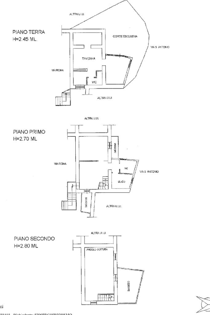
Casa indipendente ristrutturata con terrazzo e balconi – Centro storico Bassano Romano.

Nel cuore del centro storico di Bassano Romano, nella suggestiva Tuscia, a pochi chilometri da Roma e Viterbo, proponiamo in vendita casa indipendente recentemente ristrutturata, in posizione centrale e comoda, a pochi passi da parcheggi e principali servizi.

L’abitazione si sviluppa su tre livelli e si distingue per l’unicità degli spazi e per i numerosi sfoghi esterni, elemento raro nel centro storico.

Al primo piano troviamo un ampio disimpegno attrezzato come zona relax con balcone, una camera matrimoniale con balcone, una cameretta e un bagno con doccia.

Salendo al piano superiore, si apre la luminosa zona living con cucina a vista, dotata di piccolo ripostiglio e accesso a un terrazzo, ideale per pranzi all’aperto e momenti di convivialità.

Il piano terra ospita ulteriori ambienti versatili, perfetti come taverna o spazi hobby, con due ampi locali, una cantinetta e un bagno. Completa il piano una corte esclusiva, riservata e sfruttabile.

La proprietĂ  rappresenta una soluzione unica nel suo genere, grazie alla ristrutturazione curata e alla presenza di balconi, terrazzo e corte privata, perfetti da vivere in ogni stagione.

Ideale come prima casa, seconda casa o investimento.


Non perdere l’occasione di visitarla: contattaci per maggiori informazioni o per fissare un appuntamento.

Mostra tutto

Nelle vicinanze

Scuole Scuole
Istituto comprensivo di Bassano Romano
560 m
Farmacia Farmacia
Farmabassano
480 m
Farmacia
610 m
Negozi Negozi
Gipsy
580 m
Pane e Dolci
620 m
Ristoranti Ristoranti
Il Peperino
1,1 Km
Mostra tutto

Caratteristiche

Rif.:
61170882
Piano:
Su piĂš livelli di 2
Totale piani:
2
Balconi:
3
Terrazzi:
2
Camere da letto:
2
Mostra tutto
Prezzo Prezzo
€ 83.000
Rata mutuo Rata mutuo
€ 385 / mese
Spese annue Spese annue
€ 0
Proponi il tuo prezzoProponi il tuo prezzo

Classe Energetica

F
F
F
F
F
F
F
F
F
EP globale non rinnovabile:
203.16 kW h/m² anno
EP invernale del fabbricato:
EP estiva del fabbricato:
Anno di costruzione:
1967
Riscaldamento:
Autonomo
Tipo impianto:
A radiatori
Tipo alimentazione:
Metano

Ti interessa visionare l'immobile?

Fissa un appuntamento  Fissa un appuntamento

Richiedi informazioni

Clicca su Leggi per aprire l'informativa
* Questi campi sono obbligatori

Calcola il tuo mutuo

Semplice e senza impegno
Anticipo

( % )
Mutuo

( % )

pochi semplici passi

inserisci i tuoi dati
Questionario completato
Grazie per aver richiesto un appuntamento senza impegno con un nostro Consulente del Credito e Assicurativo.

Hai inserito correttamente tutti i dati necessari e a breve riceverai una e-mail con un link da convalidare per inviare i tuoi dati.
Affiliato
Studio Immobiliare Sutri Srl
P.zza Cavour, 26/27 01015 Sutri (VT)

Il nostro staff


  • Roberta Marras
    Responsabile

  • Domenico Cilenti
    Collaboratore

  • Daniele Casamassa
    Affiliato

  • Alessandra Zucci
    Responsabile

  • Francesca Cilenti
    Collaboratrice

  • Janny Jayakody Arachchige Don
    Collaboratrice
P.zza Cavour, 26/27 01015 Sutri (VT)
Zona: Sutri-Capranica-Bassano Romano
Mostra su mappa
Orari: 9.00-13.00/15.30-20.00
Affiliato
Studio Immobiliare Sutri Srl
P.zza Cavour, 26/27 01015 Sutri (VT)

2026 Tecnocasa Franchising S.p.A. - P. IVA 08365160152 - Via Monte Bianco 60/A 20089 Rozzano (MI). Ogni agenzia ha un proprio titolare ed è autonoma. Privacy policy | Policy utilizzo | Cookie policy