Quadrilocale in vendita

Sutri, Via Di Ronciglione
€ 75.000
4 locali 4 locali
100 Mq 100 Mq
1 bagno 1 bagno

Quadrilocale in vendita

Sutri, Via Di Ronciglione

Descrizione annuncio

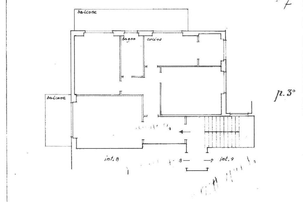
Appartamento al terzo piano vicino al centro storico di Sutri.

In posizione strategica e comoda ai servizi, a pochi passi dal centro storico e dal parcheggio pubblico, proponiamo in vendita un appartamento al terzo piano di una palazzina senza ascensore.

L’immobile si compone di ingresso, ampio salone con balcone, cucina abitabile con ripostiglio e accesso al balcone, due camere matrimoniali, di cui una con balcone, e bagno.

L’appartamento è luminoso e funzionale, con spazi ben distribuiti, e rappresenta una ottima opportunità per chi desidera rimodernare e personalizzare gli ambienti secondo i propri gusti. Compleata la proprietà una cantina di pertinenza.

Vivere a Sutri comodamente, vicino a negozi, servizi e al centro storico, con tutte le comodità a portata di mano.

Un’ottima occasione da non perdere! Contattaci subito per maggiori informazioni o per prenotare una visita.

Mostra tutto

Nelle vicinanze

Trasporto pubblico Trasporto pubblico
Trasporto pubblico
560 m
Farmacia Farmacia
Parafarmacia dott. De Angelis
210 m
Farmacia
630 m
Supermercati Supermercati
OnePrice Discount
20 m
Tigre - Cippy
230 m
Negozi Negozi
Conad City
270 m
Negozi
520 m
Kios
600 m
Tosi Norcineria
630 m
Bar Bar
Bar Salza
500 m
Bar Tonetti
640 m
Ristoranti Ristoranti
Via Roma 54
510 m
La Taverna
580 m
La sfera d'oro
610 m
La locanda di saturno
670 m
Pizzeria Il Localetto
710 m
Mostra tutto

Caratteristiche

Rif.:
61172010
Piano:
3 di 4 (Piano alto)
Balconi:
2
Camere da letto:
2
Arredamento:
Assente
Condizionamento:
Predisposizione impianto
Mostra tutto
Prezzo Prezzo
€ 75.000
Rata mutuo Rata mutuo
€ 356 / mese
Proponi il tuo prezzoProponi il tuo prezzo

Classe Energetica

G
G
G
G
G
G
G
G
G
EP globale non rinnovabile:
245.08 kW h/m² anno
EP invernale del fabbricato:
EP estiva del fabbricato:
Anno di costruzione:
1966
Riscaldamento:
Autonomo
Tipo impianto:
A radiatori
Tipo alimentazione:
Metano

Ti interessa visionare l'immobile?

Fissa un appuntamento  Fissa un appuntamento

Richiedi informazioni

Clicca su Leggi per aprire l'informativa
* Questi campi sono obbligatori

Calcola il tuo mutuo

Semplice e senza impegno
Anticipo

( % )
Mutuo

( % )

pochi semplici passi

inserisci i tuoi dati
Questionario completato
Grazie per aver richiesto un appuntamento senza impegno con un nostro Consulente del Credito e Assicurativo.

Hai inserito correttamente tutti i dati necessari e a breve riceverai una e-mail con un link da convalidare per inviare i tuoi dati.
Affiliato
Studio Immobiliare Sutri Srl
P.zza Cavour, 26/27 01015 Sutri (VT)

Il nostro staff


  • Roberta Marras
    Responsabile

  • Domenico Cilenti
    Collaboratore

  • Daniele Casamassa
    Affiliato

  • Alessandra Zucci
    Responsabile

  • Francesca Cilenti
    Collaboratrice

  • Augusta Di Guglielmo
    Coordinatrice

  • Janny Jayakody Arachchige Don
    Collaboratrice
P.zza Cavour, 26/27 01015 Sutri (VT)
Zona: Sutri-Capranica-Bassano Romano
Mostra su mappa
Orari: 9.00-13.00/15.30-20.00
Affiliato
Studio Immobiliare Sutri Srl
P.zza Cavour, 26/27 01015 Sutri (VT)

2026 Tecnocasa Franchising S.p.A. - P. IVA 08365160152 - Via Monte Bianco 60/A 20089 Rozzano (MI). Ogni agenzia ha un proprio titolare ed è autonoma. Privacy policy | Policy utilizzo | Cookie policy