Casa indipendente in vendita

Sutri, Localita' Pian Ceraso
€ 350.000
8 locali 8 locali
180 Mq 180 Mq
2 bagni 2 bagni

Casa indipendente in vendita

Sutri, Localita' Pian Ceraso

Descrizione annuncio

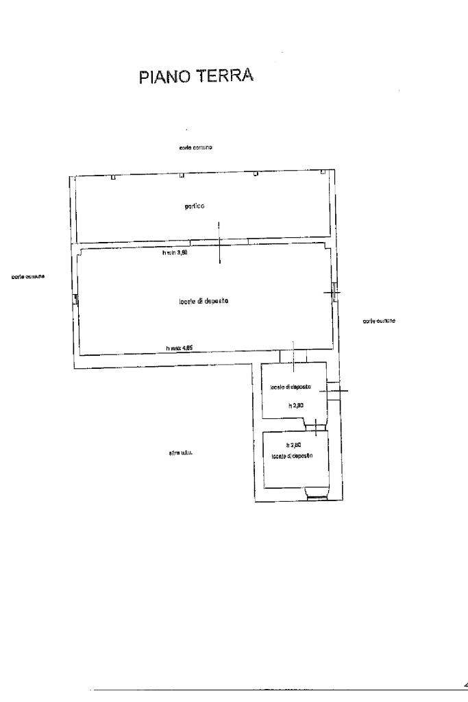
Antico casale con 10 ettari di terreno e noccioleto produttivo

Proponiamo in vendita un antico casale risalente ai primi del ‘900, una proprietà unica nel suo genere che conserva intatto il fascino autentico delle strutture storiche rurali.

L’immobile si presenta da ristruttura casale: contattaci per maggiori informazioni e per vivere da vicino la sua unicità.

Mostra tutto

Nelle vicinanze

Trasporto pubblico Trasporto pubblico
Trasporto pubblico
600 m
Farmacia Farmacia
Farmacia
610 m
Parafarmacia dott. De Angelis
1,4 Km
Supermercati Supermercati
OnePrice Discount
1,2 Km
Tigre - Cippy
1,4 Km
Negozi Negozi
Negozi
520 m
Tosi Norcineria
610 m
Kios
640 m
Conad City
980 m
Bar Bar
Bar Tonetti
600 m
Bar Salza
740 m
Ristoranti Ristoranti
L'Anfiteatro
400 m
Pizzeria Il Localetto
530 m
La locanda di saturno
590 m
La sfera d'oro
630 m
La Taverna
650 m
Mostra tutto

Caratteristiche

Rif.:
61107269
Piano:
2 di 2 (Piano su più livelli)
Box:
1
Posti auto:
3
Camere da letto:
3
Arredamento:
Assente
Mostra tutto
Prezzo Prezzo
€ 350.000
Rata mutuo Rata mutuo
€ 1.631 / mese
Spese annue Spese annue
€ 0
Proponi il tuo prezzoProponi il tuo prezzo

Classe Energetica

G
G
G
G
G
G
G
G
G
EP globale non rinnovabile:
175.00 kW h/m² anno
EP globale rinnovabile:
175.00 kW h/m² anno
EP invernale del fabbricato:
EP estiva del fabbricato:
Anno di costruzione:
1940
Riscaldamento:
Assente

Ti interessa visionare l'immobile?

Fissa un appuntamento  Fissa un appuntamento

Richiedi informazioni

* Questi campi sono obbligatori

Calcola il tuo mutuo

Semplice e senza impegno
Anticipo

( % )
Mutuo

( % )

pochi semplici passi

inserisci i tuoi dati
Questionario completato
Grazie per aver richiesto un appuntamento senza impegno con un nostro Consulente del Credito e Assicurativo.

Hai inserito correttamente tutti i dati necessari e a breve riceverai una e-mail con un link da convalidare per inviare i tuoi dati.
Affiliato
Studio Immobiliare Sutri Srl
P.zza Cavour, 26/27 01015 Sutri (VT)

Il nostro staff


  • Roberta Marras
    Responsabile

  • Domenico Cilenti
    Collaboratore

  • Daniele Casamassa
    Affiliato

  • Alessandra Zucci
    Responsabile

  • Francesca Cilenti
    Collaboratrice

  • Anna Maria Diaconu
    Collaboratrice

  • Janny Jayakody Arachchige Don
    Collaboratrice

  • Chiara Mastrodonato
    Coordinatrice
P.zza Cavour, 26/27 01015 Sutri (VT)
Zona: Sutri-Capranica-Bassano Romano
Mostra su mappa
Orari: 9.00-13.00/15.30-20.00
Affiliato
Studio Immobiliare Sutri Srl
P.zza Cavour, 26/27 01015 Sutri (VT)

2025 Tecnocasa Franchising S.p.A. - P. IVA 08365160152 - Via Monte Bianco 60/A 20089 Rozzano (MI). Ogni agenzia ha un proprio titolare ed è autonoma. Privacy policy | Policy utilizzo | Cookie policy