Rustico in vendita

Sutri, Via San Silvestro
€ 55.000
3 locali 3 locali
65 Mq 65 Mq
1 bagno 1 bagno

Rustico in vendita

Sutri, Via San Silvestro

Descrizione annuncio

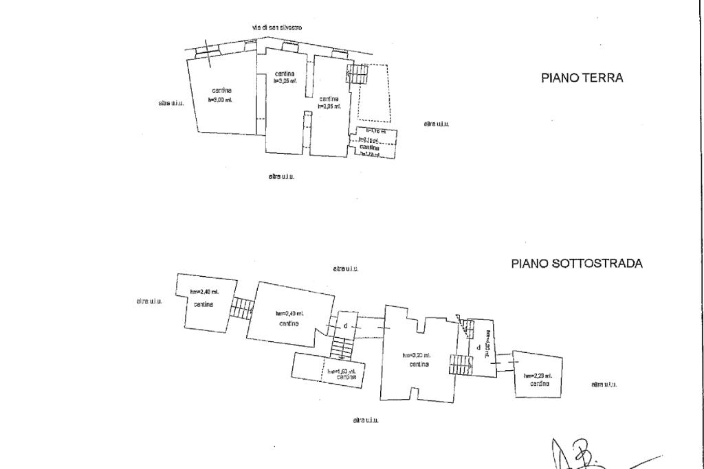
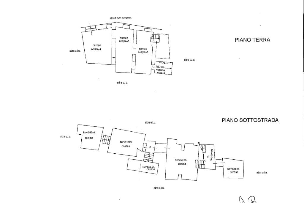
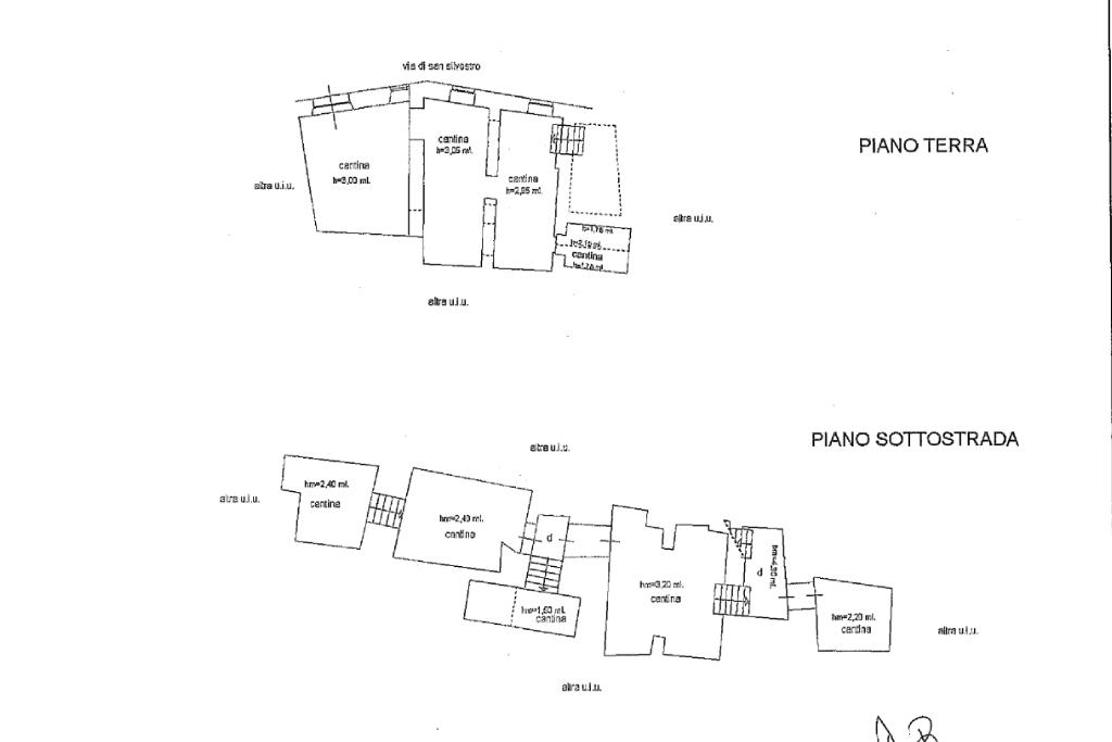
Sutri Centro Storico - 65 mq Ristrutturati con Suggestiva Cantina in Tufo di circa 90 mq.

Nel cuore del centro storico di Sutri, a pochi passi dall’Antico Lavatoio di Sutri, proponiamo in vendita proprietà di 65 mq con possibilità di cambio di destinazione d’uso, situata al piano terra e completamente ristrutturata con materiali di alta qualità.

L’immobile si distingue per la ristrutturazione curata nei minimi dettagli e per i grandi ambienti. Il piano terra è composto da tre ampi vani, tra cui un soggiorno, sala da pranzo versatile e facilmente adattabile a futura camera o studio, oltre a cucina abitabile e bagno con doccia.

Elemento di assoluto valore è la cantina scavata nel tufo, situata nel seminterrato e articolata su più livelli con quattro caratteristiche grotte. Grazie alla conformazione naturale del tufo, mantiene una temperatura costante di circa 15°C tutto l’anno, rendendola perfetta come cantina vini, spazio degustazione o ambiente relax esclusivo.

Posizione centralissima, contesto storico di grande fascino e interessante potenzialità di trasformazione rendono questa soluzione ideale sia come investimento sia per chi desidera realizzare un’abitazione unica nel cuore del borgo.

Mostra tutto

Nelle vicinanze

Trasporto pubblico Trasporto pubblico
Trasporto pubblico
90 m
Farmacia Farmacia
Farmacia
190 m
Parafarmacia dott. De Angelis
640 m
Supermercati Supermercati
OnePrice Discount
460 m
Tigre - Cippy
660 m
Negozi Negozi
Negozi
60 m
Kios
160 m
Tosi Norcineria
190 m
Conad City
240 m
Bar Bar
Bar Salza
40 m
Bar Tonetti
190 m
Ristoranti Ristoranti
Via Roma 54
60 m
La Taverna
150 m
La sfera d'oro
160 m
La locanda di saturno
280 m
Pizzeria Il Localetto
290 m
Mostra tutto

Caratteristiche

Rif.:
61181699
Piano:
Terra di 3
Totale piani:
3
Camere da letto:
1
Arredamento:
Assente
Condizionamento:
Assente
Mostra tutto
Prezzo Prezzo
€ 55.000
Rata mutuo Rata mutuo
€ 261 / mese
Proponi il tuo prezzoProponi il tuo prezzo

Classe Energetica

Questo immobile è esente da classe energetica
Anno di costruzione:
1967
Riscaldamento:
Autonomo
Tipo impianto:
A radiatori
Tipo alimentazione:
Metano

Ti interessa visionare l'immobile?

Fissa un appuntamento  Fissa un appuntamento

Richiedi informazioni

Clicca su Leggi per aprire l'informativa
* Questi campi sono obbligatori

Calcola il tuo mutuo

Semplice e senza impegno
Anticipo

( % )
Mutuo

( % )

pochi semplici passi

inserisci i tuoi dati
Questionario completato
Grazie per aver richiesto un appuntamento senza impegno con un nostro Consulente del Credito e Assicurativo.

Hai inserito correttamente tutti i dati necessari e a breve riceverai una e-mail con un link da convalidare per inviare i tuoi dati.
Affiliato
Studio Immobiliare Sutri Srl
P.zza Cavour, 26/27 01015 Sutri (VT)

Il nostro staff


  • Roberta Marras
    Responsabile

  • Domenico Cilenti
    Collaboratore

  • Daniele Casamassa
    Affiliato

  • Alessandra Zucci
    Responsabile

  • Francesca Cilenti
    Collaboratrice

  • Augusta Di Guglielmo
    Coordinatrice

  • Janny Jayakody Arachchige Don
    Collaboratrice
P.zza Cavour, 26/27 01015 Sutri (VT)
Zona: Sutri-Capranica-Bassano Romano
Mostra su mappa
Orari: 9.00-13.00/15.30-20.00
Affiliato
Studio Immobiliare Sutri Srl
P.zza Cavour, 26/27 01015 Sutri (VT)

2026 Tecnocasa Franchising S.p.A. - P. IVA 08365160152 - Via Monte Bianco 60/A 20089 Rozzano (MI). Ogni agenzia ha un proprio titolare ed è autonoma. Privacy policy | Policy utilizzo | Cookie policy