Porzione di bifamiliare in vendita

Sutri, Via dei saturnali
€ 300.000
8 locali 8 locali
220 Mq 220 Mq
3 bagni 3 bagni

Porzione di bifamiliare in vendita

Sutri, Via dei saturnali

Descrizione annuncio

Villa nel centro residenziale di Collediama

Proponiamo in vendita una villa indipendente situata nel contesto residenziale, costruita nel 2004 e caratterizzata da ambienti curati e uno stile interno raffinato.
La casa si distingue per gli spazi ampi e per la splendida luminosità che la attraversa in ogni ambiente.

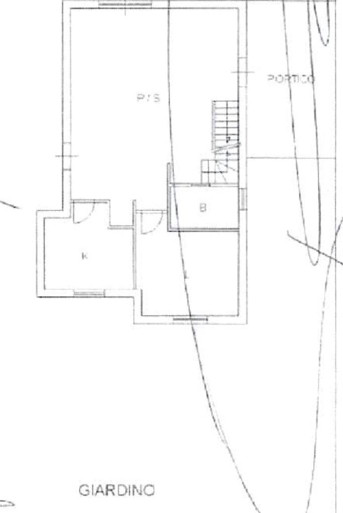
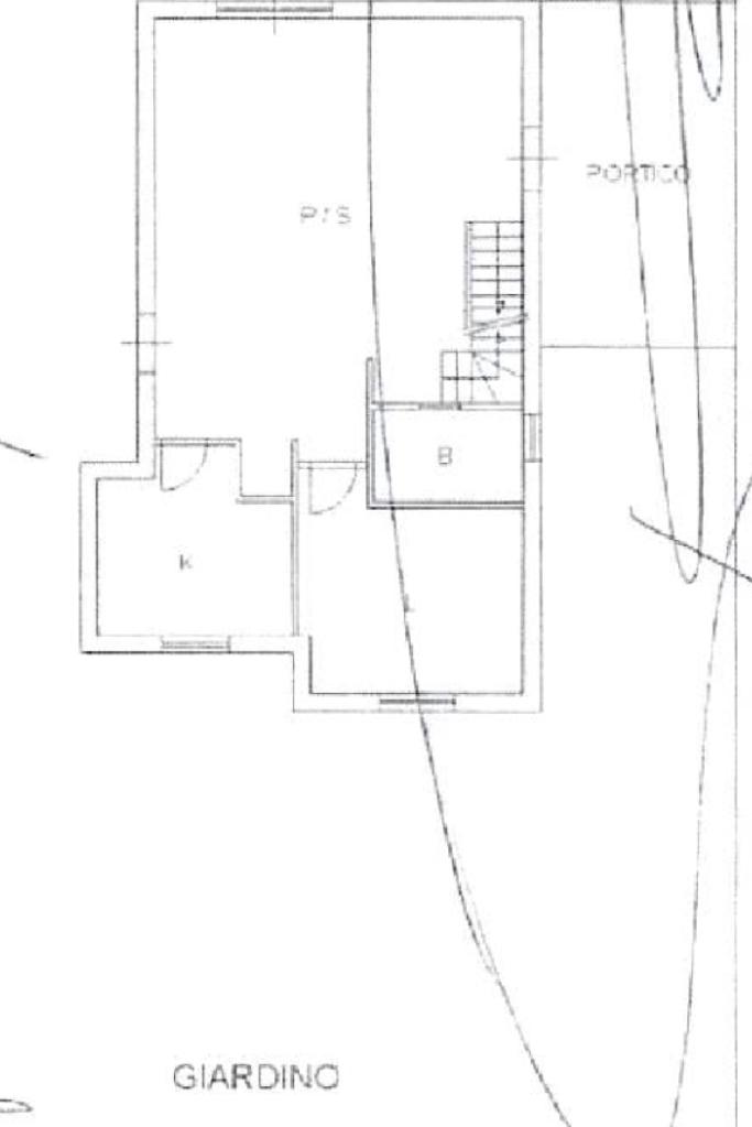
Al piano principale troviamo un ampio salone con grande finestra che si apre su un terrazzo collegato all’ampio portico laterale, perfetto per momenti di relax all’aperto. Nello stesso livello sono presenti anche un secondo ambiente attualmente adibito a salotto — ideale anche come camera al piano —, una cucina comoda e un bagno.

La zona notte, al piano superiore, ospita due spaziose camere da letto e un secondo bagno.

Il piano seminterrato offre una grande taverna con camino, angolo cottura, bagno, camera da letto e cantina. L’accesso può avvenire sia internamente che da un ingresso indipendente esterno, soluzione perfetta per chi desidera uno spazio separato o un piccolo loft autonomo.

Completano la proprietà un garage, il giardino privato e l’indipendenza che rende questa villa una scelta ideale per chi cerca comfort, spazio e privacy.

Una casa perfetta per famiglie o per chi desidera una seconda abitazione immersa nel verde, in un contesto sereno e residenziale.

Contattaci per maggiori informazioni o per fissare una visita.

Mostra tutto

Nelle vicinanze

Trasporto pubblico Trasporto pubblico
COTRAL
COTRAL
2,2 Km
Trasporto pubblico
2,4 Km
Ricariche auto elettriche Ricariche auto elettriche
Le Cartiere Autolavaggio
2,5 Km
Scuole Scuole
Francesco Petrarca
2,9 Km
Farmacia Farmacia
Parafarmacia dott. De Angelis
1,8 Km
Farmacia
2,5 Km
Farmacia Morera
3,0 Km
Supermercati Supermercati
Tigre - Cippy
1,8 Km
OnePrice Discount
1,9 Km
Todis
2,2 Km
Coop
2,5 Km
Alimentari Stefanelli Stefania
2,5 Km
Negozi Negozi
Conad City
2,1 Km
Negozi
2,4 Km
Kios
2,4 Km
Tosi Norcineria
2,5 Km
Sport 4 SAS di Puccica Rosolino EC
2,8 Km
Bar Bar
Bar Salza
2,4 Km
Bar Tonetti
2,5 Km
Bar Castello
2,6 Km
For Di Porta
2,7 Km
Roxy Bar Sas Di Salvatori Laura
2,8 Km
Ristoranti Ristoranti
Il Buccaro
560 m
Le Fontanelle
2,2 Km
Via Roma 54
2,4 Km
Zi Titta
2,4 Km
La Taverna
2,4 Km
Mostra tutto

Caratteristiche

Rif.:
61125256
Piano:
3 di 3
Box:
1
Posti auto:
2
Balconi:
1
Terrazzi:
2
Mostra tutto
Prezzo Prezzo
€ 300.000
Rata mutuo Rata mutuo
€ 1.398 / mese
Spese annue Spese annue
€ 250
Proponi il tuo prezzoProponi il tuo prezzo

Classe Energetica

G
G
G
G
G
G
G
G
G
EP globale non rinnovabile:
175.00 kW h/m² anno
EP invernale del fabbricato:
EP estiva del fabbricato:
Anno di costruzione:
2004
Riscaldamento:
Autonomo
Tipo impianto:
A radiatori
Tipo alimentazione:
GPL

Ti interessa visionare l'immobile?

Fissa un appuntamento  Fissa un appuntamento

Richiedi informazioni

* Questi campi sono obbligatori

Calcola il tuo mutuo

Semplice e senza impegno
Anticipo

( % )
Mutuo

( % )

pochi semplici passi

inserisci i tuoi dati
Questionario completato
Grazie per aver richiesto un appuntamento senza impegno con un nostro Consulente del Credito e Assicurativo.

Hai inserito correttamente tutti i dati necessari e a breve riceverai una e-mail con un link da convalidare per inviare i tuoi dati.
Affiliato
Studio Immobiliare Sutri Srl
P.zza Cavour, 26/27 01015 Sutri (VT)

Il nostro staff


  • Roberta Marras
    Responsabile

  • Domenico Cilenti
    Collaboratore

  • Daniele Casamassa
    Affiliato

  • Alessandra Zucci
    Responsabile

  • Francesca Cilenti
    Collaboratrice

  • Anna Maria Diaconu
    Collaboratrice

  • Janny Jayakody Arachchige Don
    Collaboratrice

  • Chiara Mastrodonato
    Coordinatrice
P.zza Cavour, 26/27 01015 Sutri (VT)
Zona: Sutri-Capranica-Bassano Romano
Mostra su mappa
Orari: 9.00-13.00/15.30-20.00
Affiliato
Studio Immobiliare Sutri Srl
P.zza Cavour, 26/27 01015 Sutri (VT)

2025 Tecnocasa Franchising S.p.A. - P. IVA 08365160152 - Via Monte Bianco 60/A 20089 Rozzano (MI). Ogni agenzia ha un proprio titolare ed è autonoma. Privacy policy | Policy utilizzo | Cookie policy