Villa a schiera in vendita

Sutri, Via Giuseppe Gori
€ 220.000
6 locali 6 locali
160 Mq 160 Mq
2 bagni 2 bagni

Villa a schiera in vendita

Sutri, Via Giuseppe Gori

Descrizione annuncio

Villa a Schiera Angolare su Tre Livelli con Giardino.

Proponiamo in vendita una villa a schiera angolare in ottimo stato, ideale per chi cerca ampi spazi, comfort e grande luminostà.

La proprietà offre una distrubuzione degli spazi ottimale per la vita di tutti i giorni.

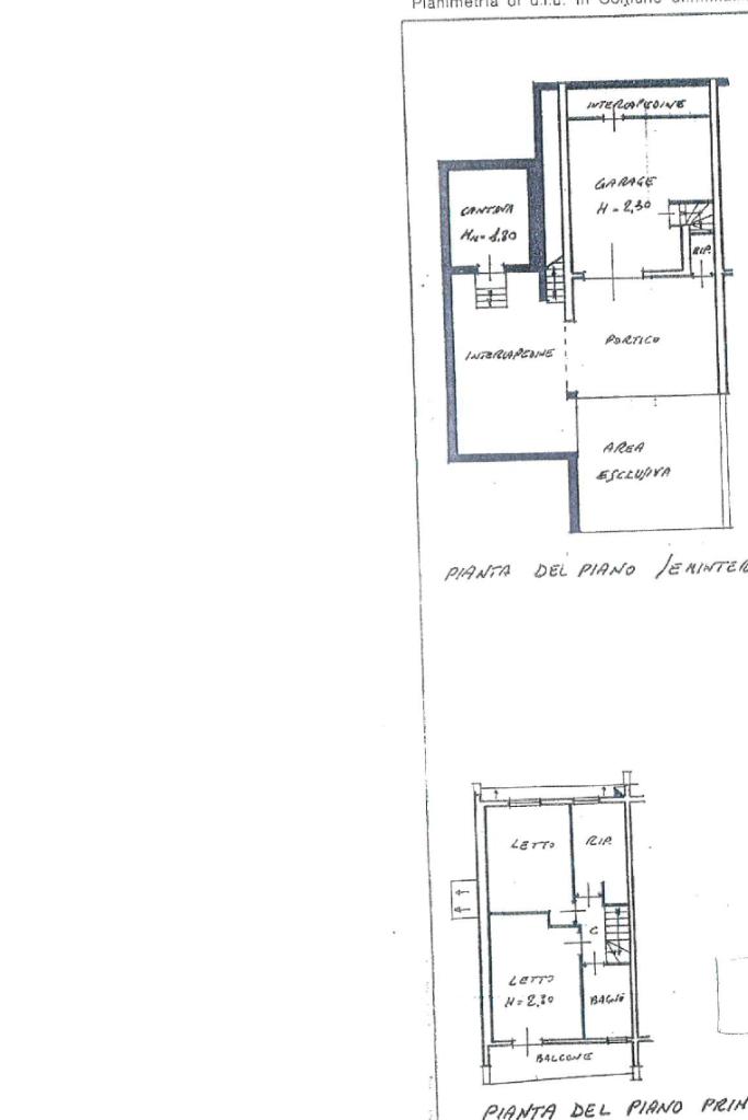
Piano terra: l'ingresso si apre su un luminoso e ampio soggiorno con camino, cucina abitale con accesso all'esterno mattonato e bagno di servizio.

Primo piano: la zona notte è composta da due camere matrimoniali, di cui una con balcone, una cameretta (ideale anche come studio) ed un bagno.

Piano seminterrato: la taverna offre un'ulteriore area living, completa di cucina, salone e camino. Perfetta per ospitare amici o come rifugio durante tutto l'anno.

Completano la proprietà un comodo magazzino, due posti auto coperti e il giardino di 200 mq ca.

La posizione angolare dell'immobile assicura maggiore privacy e luminosità. Questa proprietà rappresenta l'equilibrio tra la tranquillità di una villa e la vicinanza ai servizi principali.

Contattaci subito per maggiori informazioni o per prenotare una visita.

Mostra tutto

Nelle vicinanze

Trasporto pubblico Trasporto pubblico
Trasporto pubblico
1,0 Km
COTRAL
COTRAL
2,8 Km
Farmacia Farmacia
Parafarmacia dott. De Angelis
460 m
Farmacia
1,1 Km
Supermercati Supermercati
Tigre - Cippy
440 m
OnePrice Discount
480 m
Todis
2,8 Km
Negozi Negozi
Conad City
690 m
Negozi
960 m
Kios
1,0 Km
Tosi Norcineria
1,1 Km
Bar Bar
Bar Salza
940 m
Bar Tonetti
1,1 Km
Ristoranti Ristoranti
Via Roma 54
950 m
La Taverna
1,0 Km
La sfera d'oro
1,0 Km
La locanda di saturno
1,1 Km
Il Buccaro
1,1 Km
Mostra tutto

Caratteristiche

Rif.:
61125265
Piano:
3 di 3 (Piano su più livelli)
Box:
1
Posti auto:
2
Balconi:
2
Terrazzi:
1
Mostra tutto
Prezzo Prezzo
€ 220.000
Rata mutuo Rata mutuo
€ 1.025 / mese
Spese annue Spese annue
€ 0
Proponi il tuo prezzoProponi il tuo prezzo

Classe Energetica

G
G
G
G
G
G
G
G
G
EP globale non rinnovabile:
175.00 kW h/m² anno
EP invernale del fabbricato:
EP estiva del fabbricato:
Anno di costruzione:
1993
Riscaldamento:
Autonomo
Tipo impianto:
A radiatori
Tipo alimentazione:
Metano

Ti interessa visionare l'immobile?

Fissa un appuntamento  Fissa un appuntamento

Richiedi informazioni

* Questi campi sono obbligatori

Calcola il tuo mutuo

Semplice e senza impegno
Anticipo

( % )
Mutuo

( % )

pochi semplici passi

inserisci i tuoi dati
Questionario completato
Grazie per aver richiesto un appuntamento senza impegno con un nostro Consulente del Credito e Assicurativo.

Hai inserito correttamente tutti i dati necessari e a breve riceverai una e-mail con un link da convalidare per inviare i tuoi dati.
Affiliato
Studio Immobiliare Sutri Srl
P.zza Cavour, 26/27 01015 Sutri (VT)

Il nostro staff


  • Roberta Marras
    Responsabile

  • Domenico Cilenti
    Collaboratore

  • Daniele Casamassa
    Affiliato

  • Alessandra Zucci
    Responsabile

  • Francesca Cilenti
    Collaboratrice

  • Anna Maria Diaconu
    Collaboratrice

  • Janny Jayakody Arachchige Don
    Collaboratrice

  • Chiara Mastrodonato
    Coordinatrice
P.zza Cavour, 26/27 01015 Sutri (VT)
Zona: Sutri-Capranica-Bassano Romano
Mostra su mappa
Orari: 9.00-13.00/15.30-20.00
Affiliato
Studio Immobiliare Sutri Srl
P.zza Cavour, 26/27 01015 Sutri (VT)

2025 Tecnocasa Franchising S.p.A. - P. IVA 08365160152 - Via Monte Bianco 60/A 20089 Rozzano (MI). Ogni agenzia ha un proprio titolare ed è autonoma. Privacy policy | Policy utilizzo | Cookie policy