Villa singola in vendita

Sutri, Via dei Lucumoni - Colle Diana
€ 450.000
10 locali 10 locali
240 Mq 240 Mq
3 bagni 3 bagni

Villa singola in vendita

Sutri, Via dei Lucumoni - Colle Diana

Descrizione annuncio

Villa singola di lusso con piscina e giardino a Sutri – Colle, Sutri(VT)

In una delle zone più esclusive e residenziali di Sutri, Colle Diana, proponiamo in vendita una villa singola di prestigio, caratterizzata da grande luminosità e comfort assoluto, con pannelli fotovoltaici che garantiscono efficienza energetica e riduzione dei consumi.

La proprietà è circondata da un curato giardino privato, perfettamente vivibile, che ospita una splendida piscina, uno spazio attrezzato con portico in legno perfetto per momenti conviviali, forno a legna.

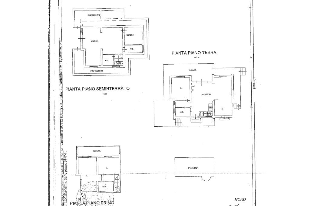
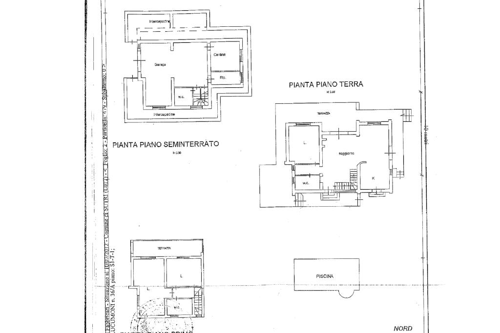
La zona giorno, al piano terra, si compone di un ampio salone con camino, zona divani e tavolo da pranzo, con uscita diretta sul portico dotato di tende da sole. Sullo stesso livello troviamo la cucina in muratura, funzionale e ben organizzata, e una camera matrimoniale con bagno, con spazi ben distribuiti.

Il piano superiore, dedicato esclusivamente alla zona notte, ospita due camere da letto, di cui una doppia con balcone, vista panoramica e affaccio su piscina, e un bagno.

Completa la proprietà il piano seminterrato, composto da cucina, soggiorno, camera da letto e bagno, uno spazio versatile ideale come area ospiti, zona relax o appartamento indipendente.

Una soluzione unica per chi cerca eleganza, indipendenza e qualità della vita, in uno dei contesti più richiesti della Tuscia. Per maggiori informazioni o per prenotare una visita, non esitate a contattarci.

Mostra tutto

Nelle vicinanze

Trasporto pubblico Trasporto pubblico
Trasporto pubblico
2,2 Km
COTRAL
COTRAL
2,2 Km
Ricariche auto elettriche Ricariche auto elettriche
Le Cartiere Autolavaggio
2,6 Km
Scuole Scuole
Francesco Petrarca
2,9 Km
Farmacia Farmacia
Parafarmacia dott. De Angelis
1,6 Km
Farmacia
2,2 Km
Supermercati Supermercati
Tigre - Cippy
1,5 Km
OnePrice Discount
1,7 Km
Todis
2,2 Km
Alimentari Stefanelli Stefania
2,6 Km
Tigre
2,7 Km
Negozi Negozi
Conad City
1,9 Km
Negozi
2,1 Km
Kios
2,2 Km
Tosi Norcineria
2,2 Km
Sport 4 SAS di Puccica Rosolino EC
2,8 Km
Bar Bar
Bar Salza
2,1 Km
Bar Tonetti
2,2 Km
Bar Castello
2,7 Km
For Di Porta
2,8 Km
Roxy Bar Sas Di Salvatori Laura
2,8 Km
Ristoranti Ristoranti
Il Buccaro
440 m
Via Roma 54
2,1 Km
La Taverna
2,2 Km
Le Fontanelle
2,2 Km
La sfera d'oro
2,2 Km
Mostra tutto

Caratteristiche

Rif.:
61171615
Piano:
1 di 3 (Piano su più livelli)
Posti auto:
2
Balconi:
1
Terrazzi:
2
Camere da letto:
3
Mostra tutto
Prezzo Prezzo
€ 450.000
Rata mutuo Rata mutuo
€ 2.136 / mese
Proponi il tuo prezzoProponi il tuo prezzo

Classe Energetica

G
G
G
G
G
G
G
G
G
EP globale non rinnovabile:
175.00 kW h/m² anno
EP invernale del fabbricato:
EP estiva del fabbricato:
Anno di costruzione:
2000
Riscaldamento:
Autonomo
Tipo impianto:
A radiatori
Tipo alimentazione:
GPL

Ti interessa visionare l'immobile?

Fissa un appuntamento  Fissa un appuntamento

Richiedi informazioni

Clicca su Leggi per aprire l'informativa
* Questi campi sono obbligatori

Calcola il tuo mutuo

Semplice e senza impegno
Anticipo

( % )
Mutuo

( % )

pochi semplici passi

inserisci i tuoi dati
Questionario completato
Grazie per aver richiesto un appuntamento senza impegno con un nostro Consulente del Credito e Assicurativo.

Hai inserito correttamente tutti i dati necessari e a breve riceverai una e-mail con un link da convalidare per inviare i tuoi dati.
Affiliato
Studio Immobiliare Sutri Srl
P.zza Cavour, 26/27 01015 Sutri (VT)

Il nostro staff


  • Roberta Marras
    Responsabile

  • Domenico Cilenti
    Collaboratore

  • Daniele Casamassa
    Affiliato

  • Alessandra Zucci
    Responsabile

  • Francesca Cilenti
    Collaboratrice

  • Augusta Di Guglielmo
    Coordinatrice

  • Janny Jayakody Arachchige Don
    Collaboratrice
P.zza Cavour, 26/27 01015 Sutri (VT)
Zona: Sutri-Capranica-Bassano Romano
Mostra su mappa
Orari: 9.00-13.00/15.30-20.00
Affiliato
Studio Immobiliare Sutri Srl
P.zza Cavour, 26/27 01015 Sutri (VT)

2026 Tecnocasa Franchising S.p.A. - P. IVA 08365160152 - Via Monte Bianco 60/A 20089 Rozzano (MI). Ogni agenzia ha un proprio titolare ed è autonoma. Privacy policy | Policy utilizzo | Cookie policy